
- News
- less than 1 min read
This website uses cookies. Learn more
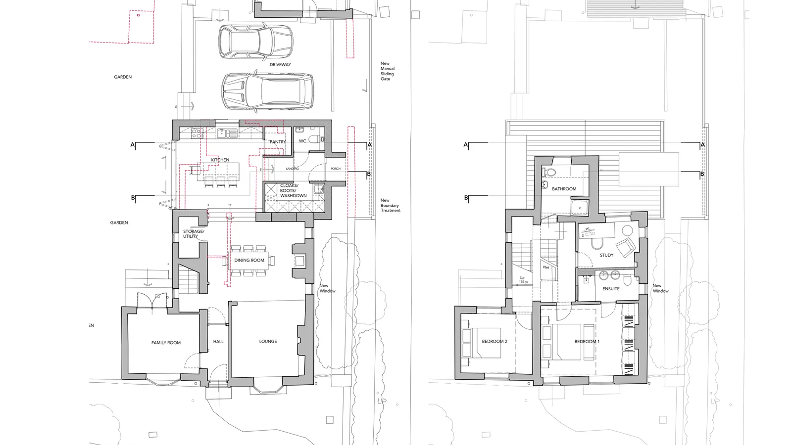
×In the heart of vibrant Bollington, this historic detached house is brimming with potential yet plagued by outdated limitations. For our outdoorsy clients, every day felt like a battle against a cramped entrance space and inconvenient layout, hindering their dynamic lifestyle. The kitchen was small and tired and didn't suit their needs and they wanted the heart of the home to connect directly with the garden.
After closely listening to our client's needs, we created a plan that solved their problems by reimagining the key spaces.
A brand-new side entrance, complete with a functional boot room and utility area, is perfectly attuned to our clients' outdoor-centric lifestyle. Stepping down into an expansive kitchen with vaulted ceiling and tall glazed doors out to the garden will feel like stepping into a breath of fresh air.
We gained full planning permission for a dramatically contemporary side extension that will be clad in timber with metal detailing around the new side extension. The project is starting on site and due to complete in Summer 2024.
This website uses cookies. Learn more
×